Leave a Message

Thank you for your message. We will be in touch with you shortly.

Explore Our Properties

Property Description

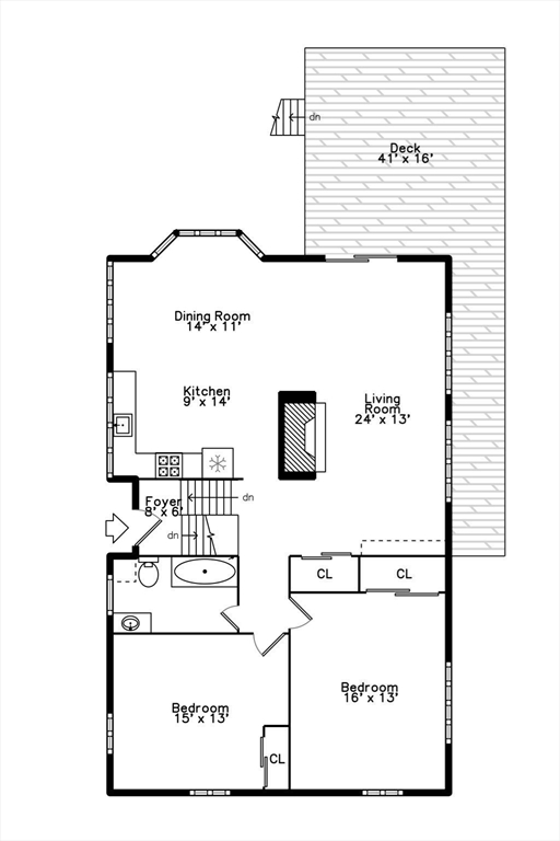
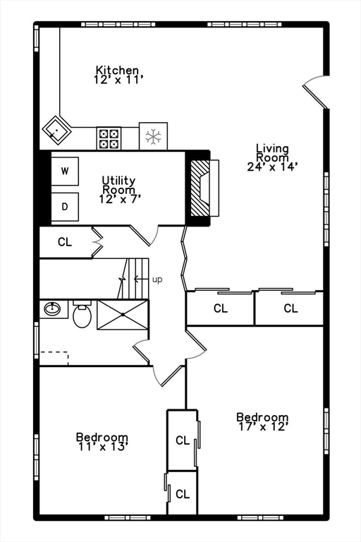
Set on almost eight wooded acres with fruit trees, this 4-bed, 2-bath split-level home offers space, privacy, and incredible potential in desirable Sherborn. You can move right in--or bring your vision and do a little renovation to make it your own. Enjoy wildlife right outside your door, from turkeys to deer, on this peaceful property. A massive three-car garage provides exceptional storage and ADU potential. While the interior needs updating, it's priced to sell and represents the least expensive home on-market in Sherborn, known for its top-rated schools, scenic hiking trails, and easy access to major commuting routes. Offered as-is, this is a rare opportunity to own acreage, privacy, and potential in one of Massachusetts' most sought-after towns.

Overview

Property Status
Sold
Lot Size
7.85 Acres
MLS ID
73441423
Property Type
Residential
Year Built
1972

Features & Amenities

Total Area
2,096 Sq.Ft.
Architecture Styles
Split Entry
Garage Spaces
3.0
Water Source
Private
Utilites
for Electric Dryer, Washer Hookup
Roof
Shingle
Lot Features
Wooded
Parking
Detached, Paved Drive, Off Street
Heat Type
Baseboard, Natural Gas
Air Conditioning
Wall Unit(s)
Laundry Room
Electric Dryer Hookup, Washer Hookup
Appliances
Gas Water Heater, Range, Dishwasher, Microwave, Refrigerator, Freezer, Washer, Dryer, Water Treatment
Other Interior Features
Central Vacuum
Sewer
Private Sewer
Substructure
Concrete Perimeter
Other Exterior Features
Deck - Composite, Rain Gutters, Fruit Trees
Elementary School
Pine Hill
Middle School
Dover Sherborn Middle School
High School
Dover Sherborn
Sales Price
$850,000
Real Estate Tax
$11,656/yr
Zoning
RB

Downloads

88 Brush Hill Rd

Schedule a Tour

We would love to help you see this beautiful home! As a full-service brokerage, we can help you tour. Please submit an offer, and answer questions about the buying process.

Enter a valid email

Thank you

for your interest in 88 Brush Hill Rd, Sherborn, MA 01770

back to page
88 Brush Hill Rd
Navigate

I'm Interested In

88 Brush Hill Rd

or
  • CallRobert Koritz

    License #95066433

    (617) 416-6078
  • Follow Us On Instagram